Mapa   Ficha
Dúplex en venta en Torredembarra, Tarragona
REF. 2586

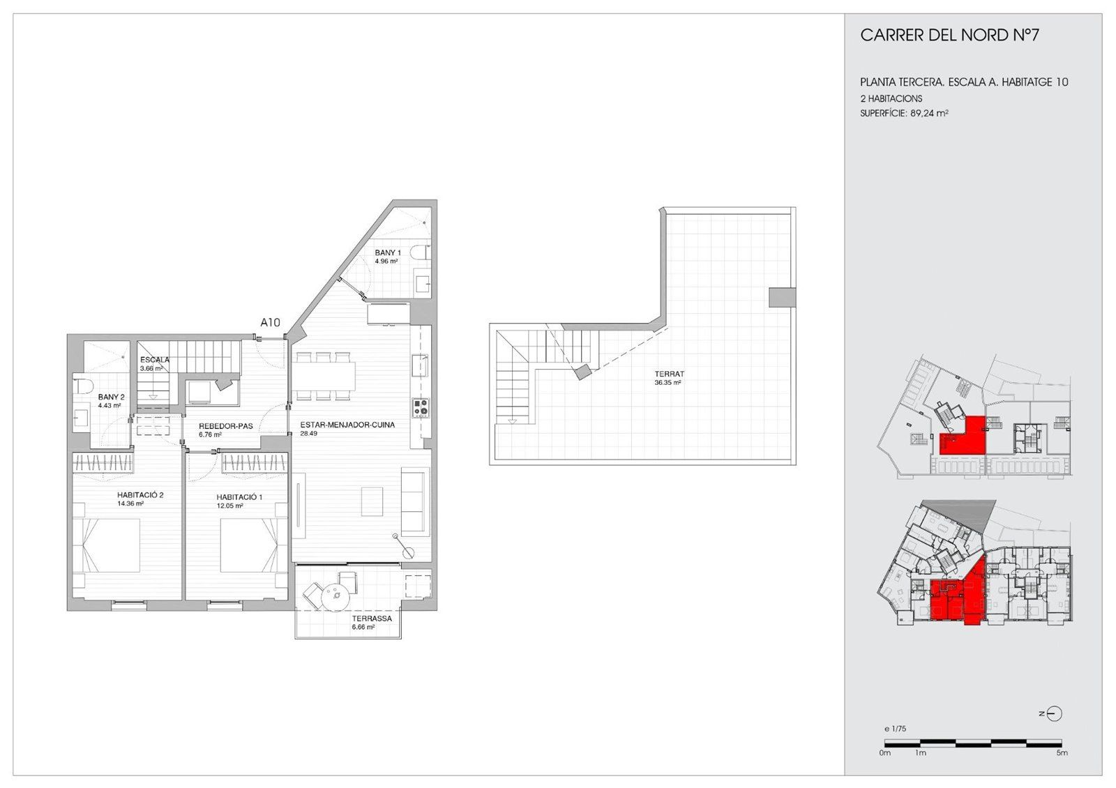
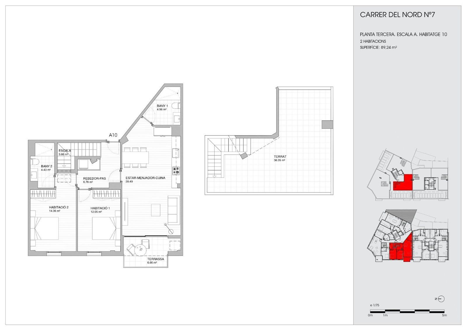
89 m2

37 m2

2

2

3
venta: 280.000 €
Descripción
Residencial PARIS 2 – Tu nuevo hogar en el corazón de Torredembarra.
Próxima construcción! Vive en una de las zonas más exclusivas de la Costa Dorada con Residencial PARIS 2, una promoción de obra nueva con 19 viviendas eficientes que combinan diseño moderno, confort y una ubicación inmejorable...Ubicado en pleno centro de Torredembarra, disfrutarás de todos los servicios, comercios y opciones de ocio… ¡y la playa a solo unos minutos caminando!.
Características destacadas.🏡 Pisos de 1, 2, 3 y 4 dormitorios.🛁 Dos baños completos.🌞 Amplias terrazas con abundante luz natural.🎨 Diseño moderno y funcional, con acabados de alta calidad...Ubicación estratégica.📍 En el corazón de Torredembarra, un encantador pueblo costero famoso por su ambiente tranquilo y sus playas...🚆 Excelente conexión:..A solo 1 hora de Barcelona..A pocos minutos de Tarragona..Perfecto para vivir todo el año o como inversión...Comodidad total.🚗 Plazas de garaje desde 9.000 a 12.000 euros y trasteros disponibles en el mismo edificio (precio a consultar)...Precios de lanzamiento.
Desde 170.000 € – Piso de 1 habitación.
Desde 190.000 € – Piso de 2 habitaciones.
Desde 250.000 € – Piso de 3 habitaciones.
Áticos con terrazas privadas desde 36 m²..¡No dejes pasar esta oportunidad!.
Contáctanos hoy mismo y da el primer paso hacia tu nuevo hogar en la Costa Dorada.
Características
Precio Venta 280.000 €
Precio/m² 3.146
Año de construcción 2027
Construidos 89 m2
Útiles 70 m2
Dormitorios 2
Baños 2
Calefacción Aerotermia
Terraza
Altura/Planta 3
Estado Obra Nueva
Tipo de suelo Gres porcelánico
Ascensor
Aire acondicionado
Calificación Energética (B) VER
Ubicación
La dirección del inmueble es aproximada.
Escalas de eficiencia


-
-

Contáctanos

Si deseas más información sobre esta propiedad, por favor, rellena el formulario.

 Sí, he leído y/o acepto las Condiciones de uso y la Política de privacidad
Inmuebles similares:
 
320.000 €
Ref. 3010  99 m2  3  2
Dúplex en venta en Torredembarra, con 103 m2, 3 habitaciones y 2 baños, Ascensor y Calefacción Aerotermia.
 
290.000 €
Ref. 2997  101 m2  2  2
Dúplex en venta en Torredembarra, con 101 m2, 2 habitaciones y 2 baños, Ascensor, Aire acondicionado y Calefacción Aerotermia.