Ficha
CASA CUATRO VIENTOS Y CON VISTAR AL MAR EN ELS MASSOS
El Vendrell (Els masos de comarruga) - REF. 2144

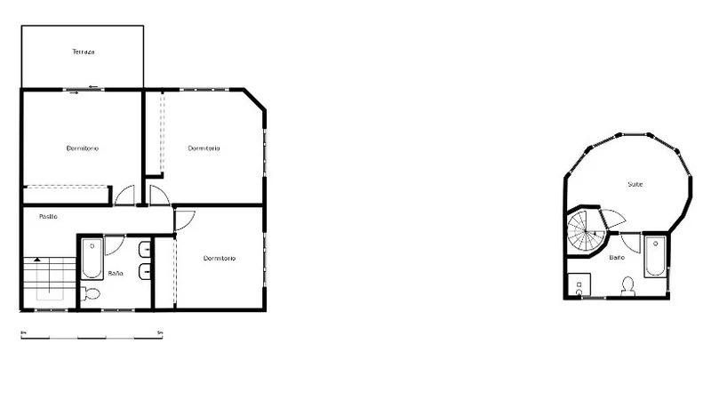
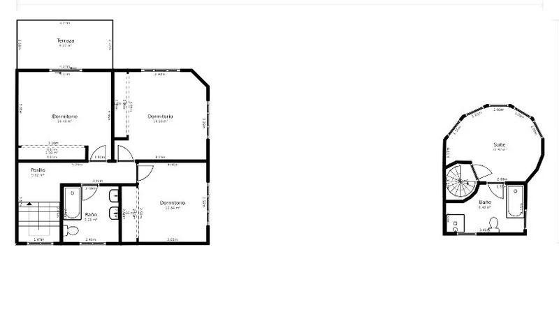
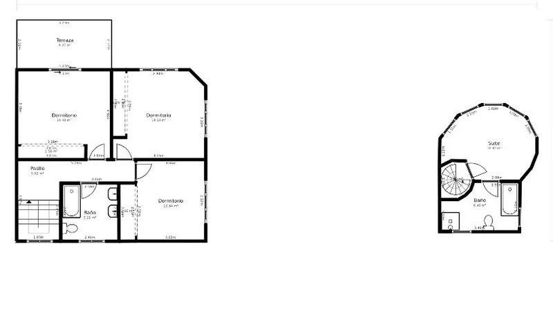
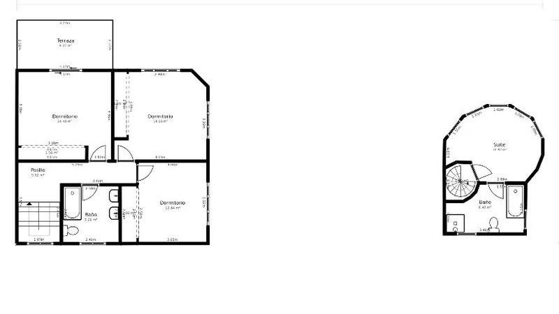
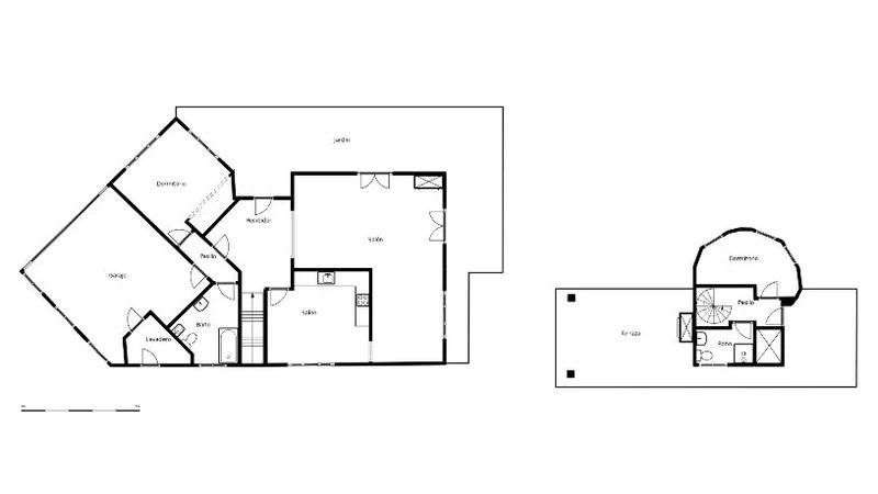
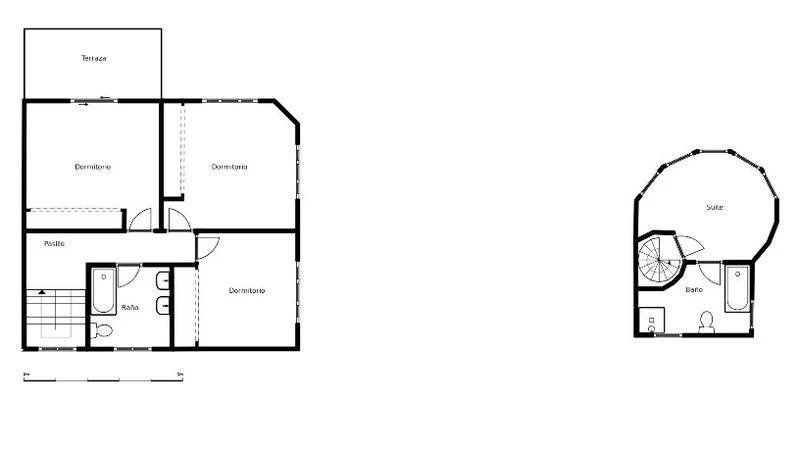
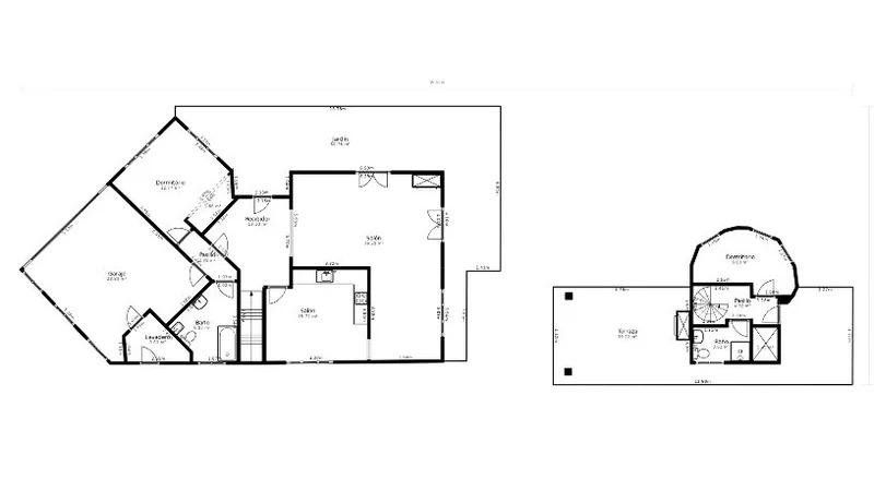
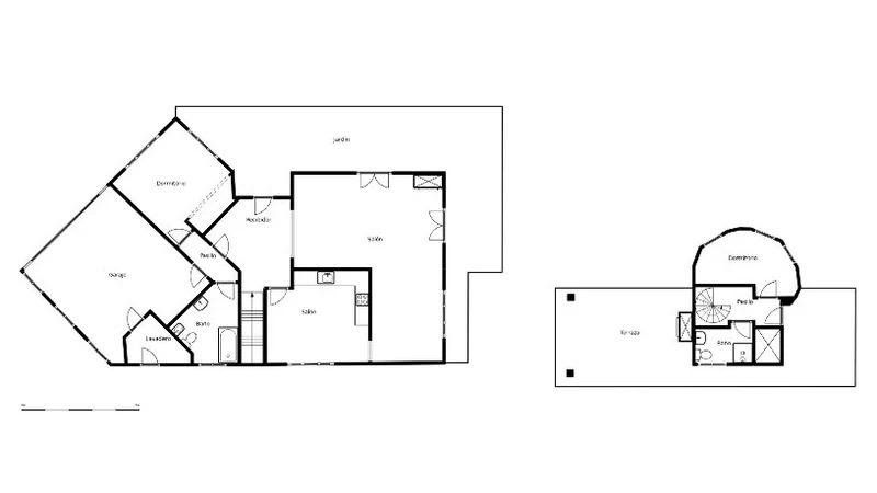
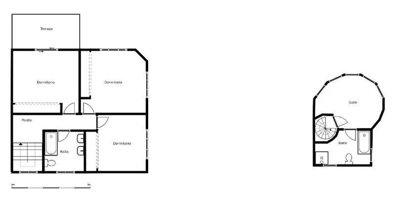
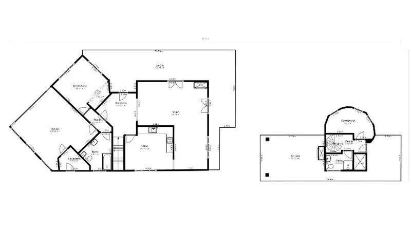
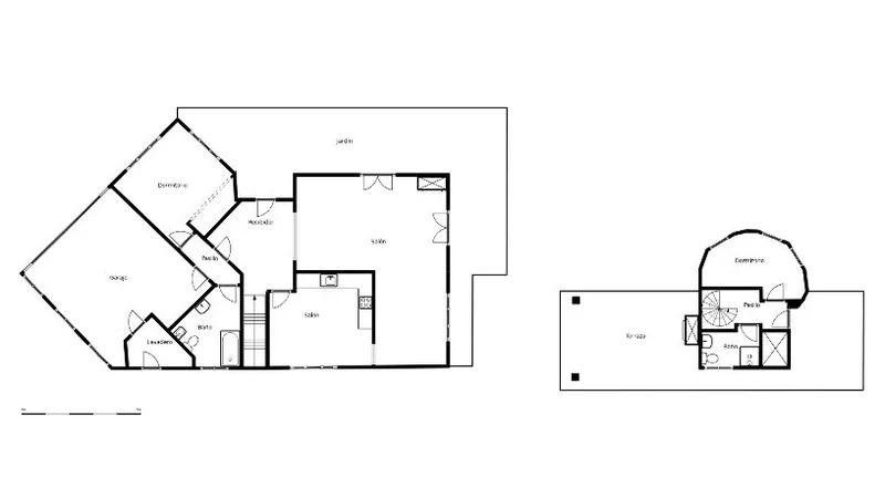
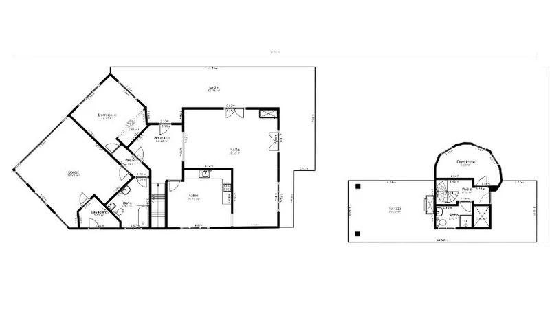
337 m2

7

4

2
venta: 406.000 €
Descripción
Casa independiente a 4 vientos en Els Massos de Coma-ruga, El Vendrell 🌴🏡..Si buscas un hogar espacioso y lleno de luz, esta casa de 7 habitaciones y 4 baños es perfecta para ti. Con una parcela de 919 m², ofrece todo el espacio que necesitas para disfrutar de una vida cómoda cerca del mar 🌊...✨ En la planta principal, encontrarás un amplio salón comedor con grandes ventanales que inundan el espacio de luz natural, conectado a una cocina abierta ideal para reuniones y momentos en familia..🚗 Además, cuenta con garaje individual para mayor comodidad...🌟 En la planta superior, destaca una terraza privada con vistas espectaculares al mar y los alrededores. Imagínate disfrutando de los atardeceres desde aquí...🌿 El exterior te brinda infinitas posibilidades: un gran espacio donde puedes crear tu propio jardín, área de barbacoa o incluso una piscina para los días más cálidos...A solo minutos de la playa 🏖️, es el lugar ideal para los amantes de la tranquilidad sin renunciar a la cercanía del mar.
Características
Precio Venta 406.000 €
Año de construcción 1989
Construidos 337 m2
Útiles 202 m2
Parcela 919 m2
Precio/m² 1.205
Dormitorios 7
Baños 4
Cocina Amueblada
Calefacción Radiadores
Terraza
Estado Entrar a vivir
Tipo de suelo Parquet
Piscina privada
Piscina comunitaria
Garaje
Calificación Energética (E) VER
Escalas de eficiencia


-
-

Tu agente
Alba Rodriguez
Contáctanos

Si deseas más información sobre esta propiedad, por favor, rellena el formulario.

 Sí, he leído y/o acepto las Condiciones de uso y la Política de privacidad
Inmuebles similares:
 
325.000 €
Ref. 2514  434 m2  5  2
Chalet Independiente en venta en Calafell, con 434 m2, 5 habitaciones y 2 baños y Piscina.
 
475.000 €
Ref. 2574  261 m2  5  2
Chalet Independiente en venta en Segur De Calafell, con 261 m2, 5 habitaciones y 2 baños, Piscina, 2 plazas de Garaje, Trastero y Calefacción Bomba de calor.