Mapa   Ficha
🏡 Encantador Chalet en Berà Mar - El Francaset (Roda de Barà)
Roda De Bara - REF. 2461

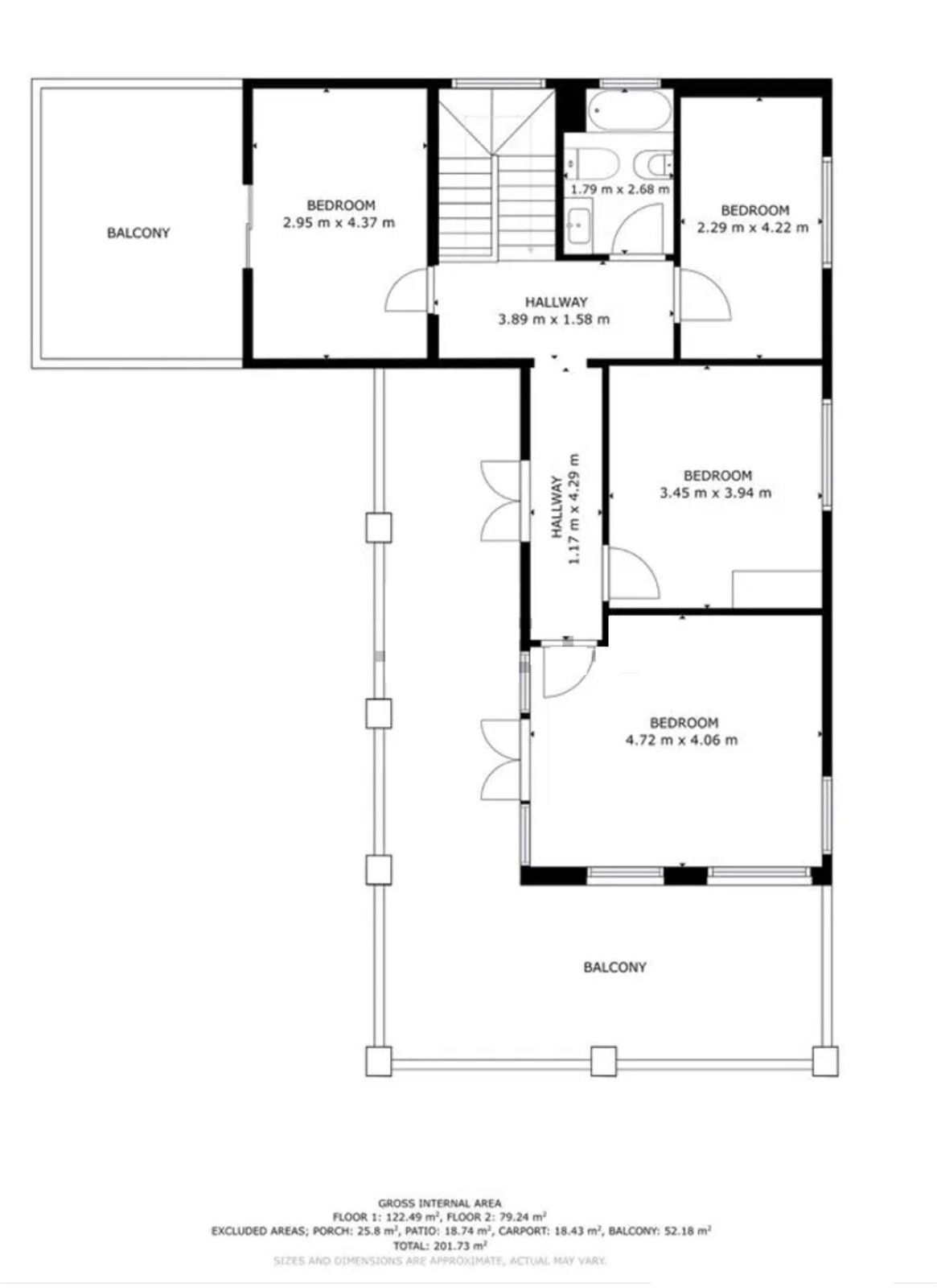
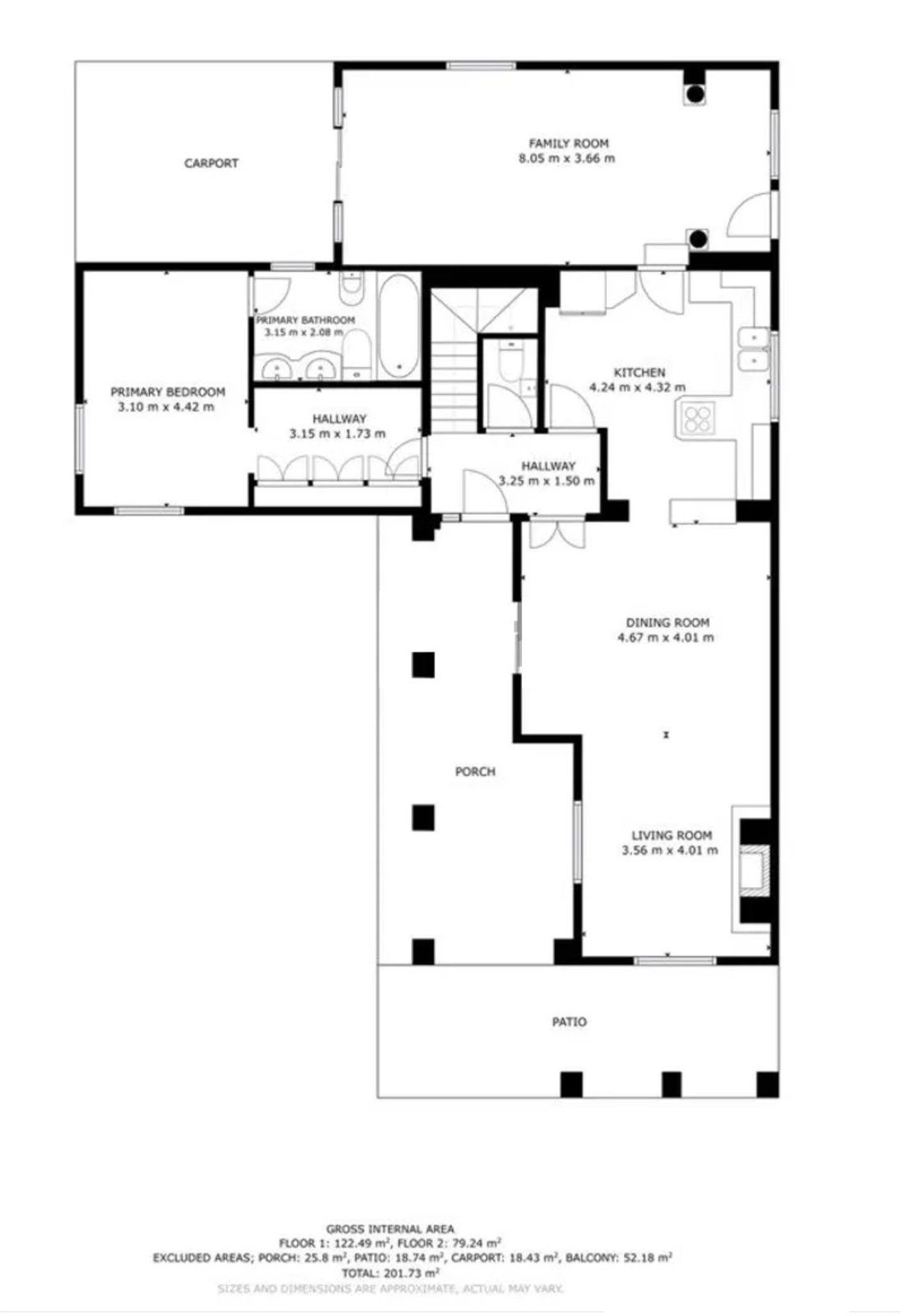
207 m2

5

3

2
venta: 690.000 €
Descripción
Ubicado en una de las zonas más tranquilas y apreciadas de Roda de Barà, en la exclusiva urbanización Berà Mar - El Francaset, este magnífico chalet ofrece el equilibrio perfecto entre comodidad, privacidad y estilo de vida mediterráneo...Con una generosa superficie construida de 207 m², la vivienda se distribuye en cinco dormitorios —cuatro de ellos dobles y uno individual— y tres baños completos, ideal tanto para familias como para quienes buscan un espacio amplio para recibir visitas. La propiedad se encuentra en buen estado de conservación y lista para entrar a vivir...⸻..🌞 Detalles que enamoran..La orientación suroeste garantiza una excelente luminosidad durante todo el día, resaltando la calidez de sus suelos de gres y la carpintería interior de madera. La cocina, completamente equipada, es funcional y acogedora, pensada para el día a día...El salón, amplio y luminoso, incorpora elementos de confort como la chimenea, creando un ambiente cálido en los meses de invierno. Además, cuenta con calefacción en toda la vivienda y se entrega con mobiliario incluido, lo que facilita aún más la mudanza...⸻..🌳 Zona exterior y extras..Uno de sus grandes atractivos es su magnífico espacio exterior: jardín privado con zona de barbacoa, piscina propia y acceso también a piscina comunitaria, perfecta para disfrutar del clima veraniego en buena compañía. La casa se sitúa en una parcela esquinera, lo que le otorga mayor independencia y privacidad...El garaje doble, el lavadero independiente, las terrazas, los techos altos y detalles como los ojos de buey, la puerta blindada o el sistema de alarma de seguridad completan una vivienda pensada para ofrecer bienestar, funcionalidad y tranquilidad...⸻..🚗 Comodidades adicionales. • Acceso adaptado para personas con movilidad reducida. • Parking incluido. • Sistema de alarma antirrobo. • Suministros activos y buena conexión con servicios..⸻..Este chalet no es solo una vivienda, sino una oportunidad de disfrutar de un estilo de vida relajado, con todos los servicios a tu alcance y cerca del mar. Si te interesa concertar una visita o necesitas más información, no dudes en decírmelo. Estaré encantado de ayudarte a descubrir si esta puede ser tu próxima casa...💰 Precio: 690.000 €
Características
Precio Venta 690.000 €
Año de construcción 2001
Construidos 207 m2
Útiles 180 m2
Parcela 686 m2
Precio/m² 3.333
Dormitorios 5
Baños 3
Amueblado
Cocina Amueblada
Calefacción Geotermia
Terraza
Estado Buen estado
Tipo de suelo Gres
Piscina privada
Piscina comunitaria
Garaje
Adaptado
Calificación Energética (G) VER
Luz
Agua
Alarma interior
Ubicación
Escalas de eficiencia


-
-

Contáctanos

Si deseas más información sobre esta propiedad, por favor, rellena el formulario.

 Sí, he leído y/o acepto las Condiciones de uso y la Política de privacidad
Inmuebles similares:
 
599.000 €
Ref. 2613  347 m2  5  5

Exclusivo chalet independiente en el corazón de Roda de Berà

Presentamos esta distinguida vivienda unifamiliar, construida en 2008, situada en una de las ubicaciones más privilegiadas de Roda de Berà, en pleno centro del municipio y a escasos pasos de todos los servicios esenciales: centro médico, transporte público, estación de tren, comercios y farmacia.

La propiedad se erige sobre una parcela de 600 m², cuidadosamente diseñada para el disfrute y la privacidad, con piscina privada, zona ajardinada y elegante área de barbacoa. Su excelente orientación sur-oeste proporciona una luminosidad excepcional durante todo el día.

La vivienda dispone de 347 m² construidos (319 m² útiles), distribuidos armoniosamente en dos plantas más planta sótano con garaje, ofreciendo amplitud, comodidad y múltiples posibilidades de uso.

Planta principal

Un refinado salón-comedor de 40 m², presidido por chimenea, se abre a una terraza de 12 m² con agradables vistas al campanario y a la zona de piscina.

La cocina independiente, amplia y funcional, ofrece la posibilidad de integrarse al comedor para crear un espacio aún más sofisticado.

En esta planta se ubican dos dormitorios dobles y dos baños completos, uno de ellos actualmente en fase final de ejecución.

Planta superior

La zona de descanso se compone de un amplio dormitorio principal con salida a una terraza privada de 18 m², desde donde se disfrutan vistas despejadas al entorno urbano. Un aseo con posibilidad de hacerlo con plato de ducha.

Completa esta planta una gran sala diáfana, actualmente destinada a gimnasio, junto con dos dormitorios dobles, uno de ellos tipo camarote.

Planta sótano

Con una superficie de 110 m², este nivel ha sido habilitado como local-bar, dispone de dos aseos reglamentarios y acceso independiente desde el lateral del garaje. Un espacio versátil con extraordinario potencial para actividad profesional, zona de ocio privada o incluso vivienda independiente.

La propiedad cuenta además con garaje cerrado y cerramientos de aluminio con doble acristalamiento, garantizando confort y eficiencia.

Una residencia singular que combina ubicación, elegancia, amplitud y versatilidad, ideal para quienes buscan una vivienda exclusiva con carácter y distinción.


 
795.000 €
Ref. 2464  247 m2  5  4
Chalet Independiente en venta en Calafell, con 247 m2, 5 habitaciones y 4 baños, Piscina, 3 plazas de Garaje, Aire acondicionado y Calefacción Central.